Estrarre informazioni dai moduli con Azure Document Intelligence

Completato

Azure Document Intelligence è progettato per supportare scenari complessi di elaborazione di documenti e moduli. Anche se è possibile usare Azure Content Understanding per estrarre campi da moduli e documenti, Azure Document Intelligence offre una vasta raccolta di modelli predefiniti, da semplici ricevute a moduli fiscali complessi. È anche possibile creare modelli personalizzati sofisticati.

Uso di modelli predefiniti

Si esaminerà un esempio di uso di Azure Document Intelligence per estrarre dati da un modulo.

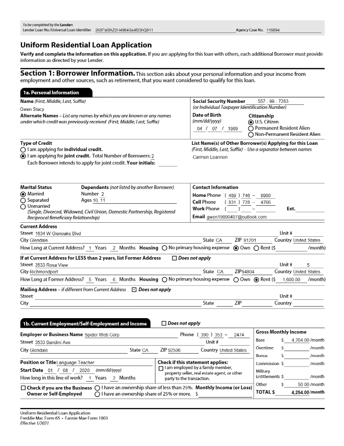
Si supponga che una società di prestiti finanziari debba elaborare centinaia di richieste ipotecarie ogni giorno. Ecco un esempio della prima pagina di un modulo standard di domanda ipotecaria a 11 pagine:

Fotografia di un modulo di domanda di prestito.

Azure Document Intelligence include un modello predefinito per questo tipo di modulo, semplificando la creazione di una soluzione in grado di individuare ed estrarre campi, ad esempio:

  • Nome del mutuatario
  • Indirizzo
  • Numero di telefono
  • Numero di previdenza sociale
  • Data di nascita
  • Stato civile
  • Stato dell'occupazione
  • Nome del datore di lavoro
  • Indirizzo del datore di lavoro
  • Reddito
  • Cittadinanza
  • e altro ancora

Creazione di modelli personalizzati

Con Azure Document Intelligence è possibile eseguire il training di modelli personalizzati usando esempi etichettati dei documenti da analizzare. L'etichettatura dei documenti comporta l'uso di OCR per definire il layout del documento e identificare i campi discreti nei documenti da estrarre.