Extrair informação de formulários com o Azure Document Intelligence

Concluído

O Azure Document Intelligence foi concebido para suportar cenários complexos de processamento de documentos e formulários. Embora também possa usar o Azure Content Understanding para extrair campos de formulários e documentos, o Azure Document Intelligence oferece uma grande biblioteca de modelos pré-construídos, desde recibos simples a formulários fiscais complexos. Você também pode criar seus próprios modelos personalizados sofisticados.

Usando modelos pré-construídos

Vamos explorar um exemplo de utilização do Azure Document Intelligence para extrair dados de um formulário.

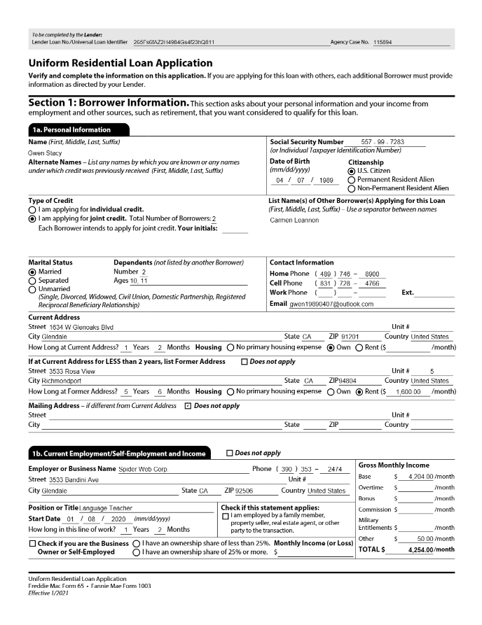
Suponha que uma empresa de empréstimo financeiro precise processar centenas de pedidos de hipoteca todos os dias. Aqui está um exemplo de apenas a primeira página de um formulário padrão de pedido de hipoteca de 11 páginas:

Fotografia de um formulário de pedido de empréstimo.

O Azure Document Intelligence inclui um modelo pré-construído para este tipo de formulário, facilitando a construção de uma solução capaz de localizar e extrair campos, tais como:

  • Nome do mutuário
  • Endereço
  • Número de telefone
  • Número de segurança social
  • Data de nascimento
  • Estado civil
  • Situação laboral
  • Nome do empregador
  • Endereço do empregador
  • Rendimentos
  • Cidadania
  • e muito mais

Criação de modelos personalizados

Com o Azure Document Intelligence, pode treinar modelos personalizados usando exemplos rotulados dos documentos que pretende analisar. Rotular seus documentos envolve o uso de OCR para definir o layout do documento e identificar os campos discretos em seus documentos que você deseja extrair.